项目信息
Project information
- 项目类别
Category:高档办公 - 合作单位
Client: 尚龙集团 - 项目日期
Project date: 2020
睿湖壹号项目
Ruihu No.1 Project
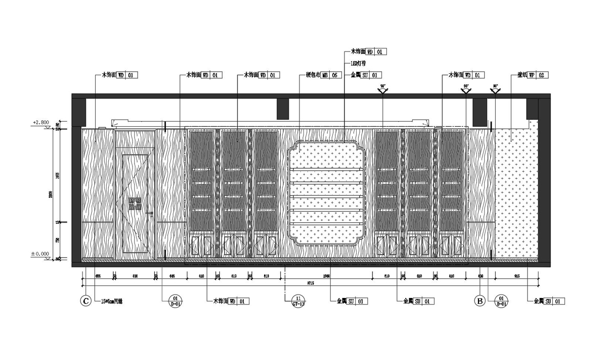
总建筑面积为9181.66 m²,高档办公施工图深化设计。
The total construction area is 9181.66 M ², High grade office construction drawing deepening design.
